รับ งาน เขียน แบบ autocad 3d 2d


นักออกแบบ/Designer
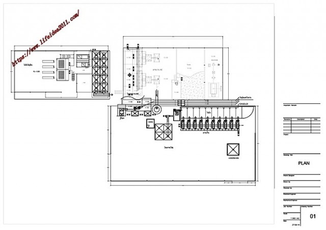
detail
detail
detail
detail

รับ งาน เขียน แบบ autocad 3d 2d
โดยทีม สถาปนิก และ วิศวกร มืออาชีพ มีประสบการณ์ เขียน แบบ autocad กว่า 10 ปี


รับ งาน เขียน แบบ autocad 3d 2d ดังนี้

รับ งาน เขียน แบบ autocad 3d 2d (งาน สถาปัตยกรรม Architectural Work)
• เขียนแบบ แปลน พื้นที่ก่อสร้าง พื้นที่โดยรอบ ฯ
• เขียนแบบ แปลน พื้น เพดาน หลังคา ชั้น ระดับ ขนาด กว้าง สูง ตำแหน่ง ฯ
• เขียนแบบ งานตกแต่งภายใน ภายนอก
• เขียนแบบ รูปด้าน รูปตัด รูปขยาย รูปมิติ ฯ

รับ งาน เขียน แบบ autocad 3d 2d (งาน โครงสร้าง Structural Work)
• เขียนแบบ แปลน โครงสร้าง เช่น แบบแปลนฐานราก, แบบแปลนพื้นชั้นบน, แบบแปลนคาน หลังคา โครงหลังคา ฯ
• เขียนแบบ ขยาย โครงสร้าง เช่น แบบขยายฐานราก, แบบขยายการเสริมเหล็ก เสา คาน พื้น , แบบขยายบันได ฯ

รับ งาน เขียน แบบ autocad 3d 2d (งานระบบ System Work)
• เขียนแบบ งาน ระบบ ไฟฟ้า ,ไฟฟ้าสื่อสาร ฯ
• เขียนแบบ งาน ระบบ สุขาภิบาล ประปา ดับเพลิง สปริงเกอร์ ฯ
• เขียนแบบ งานระบบ แอร์ ปรับอากาศ ระบายอากาศ ฯ
• เขียนแบบ วิศวกรรมเครื่องกล เช่น ลิฟท์ บันไดเลื่อน เครื่องจักรกลขนาดใหญ่ ระบบกลไกต่างๆ ที่ต้องใช้ภายในอาคาร

รับ งาน เขียน แบบ autocad 3d 2d ตามความต้องการของลูกค้า แบบที่เขียนแล้วสามารถแก้ไขได้จนกว่างานผ่าน


--------------------------------------------------------------------------------------------------------------

ขั้นตอนการใช้บริการ

1. คุยรายละเอียดงานและความต้องการ หรือ ส่งแบบให้ทางเราประเมินเนื้องาน
2. ทางเราจะประเมินเนื้องาน และ แจ้งราคาให้ลูกค้าทราบ
3. ระยะเวลาการทำงาน 5-10 วัน ขึ้นอยู่กับขนาดของงาน
4. สิ่งที่ลูกค้าจะได้รับ คือ แบบที่เป็น ไฟล์ PDF และ ไฟล์ CAD

--------------------------------------------------------------------------------------------------------------

ค่าบริการ รับ งาน เขียน แบบ autocad : เริ่มต้นที่ 3,000 บาท

1. อัตราค่าบริการ ประเมินจาก = พื้นที่ใช้สอย+ขนาดเนื้องาน+ความยากง่ายของงาน+ระยะเวลาที่ต้องการใช้
2. หากเป็นงานเร่งด่วน ราคาแต่ตามตกลง

--------------------------------------------------------------------------------------------------------------

ติดต่อสอบถาม : คุณบัญชา

Tel. 086-3202149, 085-3640569
ID Line : 0863202149
E-mail : life.idea2011@gmail.com

Website : https://www.lifeidea2011.com/
https://autocad.lifeidea2011.com/

Facebook : https://www.facebook.com/RabkheiynAutoCAD/

ยินดีให้บริการ

--------------------------------------------------------------------------------------------------------------



Province
กรุงเทพ
Location
Website

Leave a Comment
About ME
Username
เฉพาะสมาชิก
Contact
เฉพาะสมาชิก
Email
เฉพาะสมาชิก
Phone
เฉพาะสมาชิก
Other
มีผู้ติดตาม 1 คน
กำลังติดตาม 0 คน
(X)